Preisinformationen
- kalt
- 550 €
- warm
- 850 €
Objektinformationen
Auf der Suche nach einer großen Wohnung?
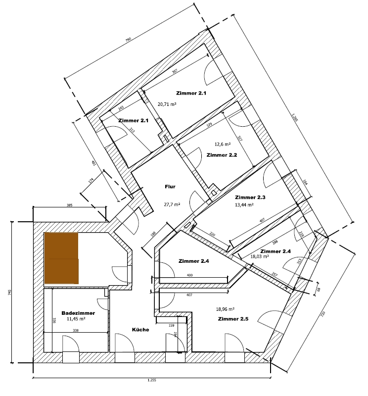
Im 1.OG ist auf 125m² diese schöne Wohnung entstanden. Auf der gesamten Etage wurde ein hochwertiger Fliesenboden in Holzoptik verbaut. Dieser ist sehr robust, einfach zu reinigen und besonders für Allergiker geeignet. Zur Küche gehört eine Küchenzeile mit Geräten und eine maßangefertigte Sitzecke. Das Badezimmer wurde mit einer Badewanne und einem Waschmaschinenanschluss, sowie einem großen Waschbecken und modernen Toilette ausgestattet. Die Wohnung ist voll möbliert und alle Möbel können übernommen werden. Im Jahr 2021 wurden auf der gesamte Fensterfront zur Mandaustraße 3-Fach verglaste Schallschutzfenster eingebaut.
Bad
Das Badezimmer ist ca. 12 m² groß und ist mit einer Badewanne ausgestattet. Das Bad wurde im Oktober 2017 vollständig renoviert und saniert.
Küche
Auch die Küche wurde vollständig renoviert und saniert und geht in den ca. 20m² großen Flurbereich über. Die maßangefertigte Sitzecke bietet viel Platz für große Familien.
Raum 2.1
ca. 21m²
Raum 2.2
ca. 15m²
Raum 2.3
ca. 15m²
Raum 2.4
ca. 18m²
Raum 2.5
ca. 19m²















